Сложные сборочные машиностроительные чертежи

Navigation:  »No topics above this level«

Сложные сборочные машиностроительные чертежи

Return to chapter overview

 

Правильная структура чертежа. "Привязка" фрагментов. Приоритеты

Прежде чем приступить к началу создания сборочного чертежа, необходимо продумать его структуру. Главное - определить требования к его параметрическим возможностям: что конкретно вы хотите впоследствии модифицировать, какие части, по-вашему, составят чертеж, какая предполагается иерархия фрагментов.

Важную роль играет система связи фрагментов между собой. Во-первых, это осуществляется правильным подбором точек привязки фрагментов. Необходимо определить, как будут созданы узлы на текущем чертеже, к которым будут "привязываться" фрагменты. Узлы могут быть созданы на основе линий построения, либо с других фрагментов.

Как правило, на сборочном чертеже фрагменты перекрывают друг друга. Для реализации такой возможности необходимо использовать механизм удаления невидимых линий. Каждому фрагменту нужно будет задать соответствующий приоритет.

 

Рассмотрим один из примеров сборочного чертежа:

sb10

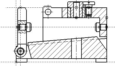
Это- сборочный чертеж приспособления (кондуктора), предназначенного для фиксации детали в определенном положении для сверления в ней отверстий. В правом верхнем углу расположен чертеж обрабатываемой детали, который выполнен непосредственно на сборочном чертеже. Сборка собрана из десяти фрагментов, привязанных как друг к другу, так и к вспомогательным линиям построения. Часть фрагментов является оригинальными деталями, часть - стандартными, например, откидной болт (поз. 4).

Создание подобного сборочного чертежа начинается с создания подробных деталировочных чертежей деталей, из которых он состоит. Но не торопитесь с их созданием. Вы можете получить прекрасно оформленные, параметрические чертежи деталей, из которых в итоге собрать сборочный чертеж будет не просто.

Сначала продумайте конструкцию сборки, с какого фрагмента вы начнете собирать чертеж, какие детали будут присоединены в последующем, где должны находиться точки привязки фрагментов. Дело в том, что создание любого из фрагментов начинается с создания базовых вертикальных и горизонтальных линий. Именно они определяют точки привязки фрагмента.

Параметры создаваемого нами сборочного чертежа кондуктора будут определяться, исходя из чертежа обрабатываемой детали. Построим чертеж этой детали и создадим переменные, отвечающие за изменяемые параметры:

Возьмем этот чертеж как основу сборочного чертежа. На сборочном чертеже деталь расположена в правом верхнем углу. Поскольку размеры кондуктора зависят от размеров детали, переменные детали будут определять впоследствии размеры сборочного чертежа кондуктора.

 

В сборочном чертеже первым (базовым) фрагментом, как и в реальной конструкции, является чертеж корпуса(поз. 1).

Создадим деталировочный чертеж корпуса.

sb12

Для данной детали расположение других элементов конструкции не влияет на положение ее точки привязки, так как корпус - это первый фрагмент.

sb13

В сборочном чертеже корпус располагается всегда горизонтально, поэтому для его привязки достаточно одной точки. Построим пересекающиеся вертикальную и горизонтальную линии для привязки первого фрагмента и узел на пересечении этих прямых. Нанесем фрагмент,привязав его к этому узлу:

sb14

 

Следующая деталь - планка (поз. 3) - должна быть привязана к корпусу. Для этого, предварительно создав узел с именем в деталировочном чертеже корпуса, создадим узел с фрагмента на сборочном чертеже.

В случаях, когда в качестве точки привязки может быть использована точка сочленения линий изображения, принадлежащих фрагменту, создание узлов с фрагмента необязательно. При указании такой точки, как узла привязки, система сама создаст узел на основе линий фрагмента. При нанесении фрагмента планки можно использовать любой из этих способов.

Точка привязки фрагмента планки соответственно создана на пересечении двух прямых:

sb15

При создании чертежа планки все остальные построения велись относительно этих базовых прямых.

Нанесем фрагмент планки на наш сборочный чертеж, привязав его к узлу, созданному с фрагмента корпуса:

sb16a

sb16b

 

Для привязки последующих фрагментов-втулок (поз.7 и поз.8) и фиксирующего винта (поз.6) в чертеже-фрагменте планки нужно создать узлы с именами.

sb17a

Это необходимо для дальнейшего создания узлов с фрагмента на сборочном чертеже:

sb17b

К этим узлам привяжем фрагменты втулок и винта.

Поскольку втулки являются в нашем случае стандартными деталями (втулка поз. 7 по ГОСТ 18432-73, втулка поз. 8 по ГОСТ 18433-73), то для них не требуется создавать полного деталировочного чертежа. Достаточно иметь чертеж того вида, который отображается на сборочном чертеже. Возможно эти детали уже содержатся в созданных вами (или еще кем-либо) библиотеках стандартных деталей. В таком случае вы можете их использовать, а не создавать заново.

Если вы используете в качестве фрагментов библиотечные втулки, то обратите внимание на то, что такие чертежи имеют две точки привязки. Именно для этого в чертеже-фрагменте планки предусмотрено, а на сборочном чертеже создано, по два узла с фрагмента для привязки втулок и винта.

sb18

 

Аналогичным образом нанесем на чертеж фрагмент опоры (поз. 9), привязав его к узлам с фрагмента планки.

До сих пор для создания нашей сборки мы обходились узлами с фрагментов. Но возможно, а иногда необходимо использовать дополнительные построения для привязки фрагментов.

 

Сейчас нам надо поместить на сборочный чертеж фрагмент прихвата (поз. 2), а в нем разместить вторую опору (поз. 9).Но взаимное расположение этих деталей вступает в противоречие: с одной стороны, вторая опора должна располагаться на одной оси с первой, а с другой стороны, на ее расположение влияет отверстие в прихвате. Рассмотрим один из вариантов решения.

sb19

Через узлы, к которым привязан фрагмент первой опоры, проведем горизонтальную линию.

С фрагмента корпуса создадим еще один узел для привязки к нему фрагмента прихвата. Через этот узел проведем вертикальную прямую и построим узел на пересечении горизонтальной и вертикальной прямых. Также проведем прямую через узел, ранее построенный нами для привязки одной из втулок.

На пересечении прямых создадим узлы:

sb20

Используем полученные узлы для привязки к ним фрагмента прихвата. Но для этого чертеж прихвата надо создать следующим образом:

sb23

Этот чертеж имеет три точки привязки. В результате он "растягивается" при нанесении между тремя узлами:

sb22

Создав во фрагменте прихвата узлы с именами и "проявив" их на сборочном чертеже, можно к ним привязать вторую опору. В результате, используя только дополнительные построения и узлы с фрагмента, мы добились требуемого в данном случае результата - соосности опор.

Дальнейшая сборка выполняется аналогично: где-то использованы узлы с фрагмента, где-то - дополнительные построения для получения узлов привязки.

 

Обратите внимание на последовательность прорисовки фрагментов, на то, как они перекрывают друг друга. Это возможно регулировать, используя приоритеты фрагментов.

sb24

Например, вот как будет выглядеть сборочный чертеж, если все фрагменты имеют одинаковый приоритет (по умолчанию он равен нулю).

Полученный результат мало напоминает правильную картину. Чтобы исправить положение, расставим у некоторых фрагментов приоритеты. Фрагмент прихвата (поз. 2) должен перекрывать корпус. Для этого в редактировании фрагментов выберите прихват и войдите в его параметры. Установите приоритет для этого фрагмента равным 1. То же проделайте для фрагмента откидного болта (поз. 4), но для него установите приоритет выше, чем для прихвата, так как болт должен прорисоваться сверху:

clip1249

sb26

В результате сборочный чертеж будет выглядеть совсем иначе.

Напомним, что расстановка приоритетов даст желаемый результат только в том случае, если во фрагментах созданы контуры для удаления невидимых линий (смотри команду FRagment).

 

Обратите внимание, что для удобства работы со сложными сборочными чертежами используются определенные приемы: ключевые переменные и переменные фрагменты , а также переменные уровни.

 

Смотри: Содержание , Специфика работы со сборочными чертежами