Для лучшего понимания способов создания 2D сборок можно ознакомиться с примером, поставляемым вместе с T-FLEX CAD в библиотеке Примеры 18/2D Сборки/Кондуктор 2D.
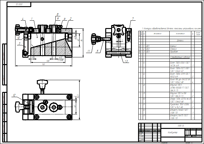
Это - сборочный чертеж приспособления (кондуктора), предназначенного для сверления отверстий в обрабатываемой детали. Сборка собрана из фрагментов, привязанных как друг к другу, так и к вспомогательным линиям построения. Часть фрагментов является оригинальными деталями, часть - стандартными.

Параметры сборочного чертежа кондуктора определяются, исходя из размеров обрабатываемой детали. Эти размеры определяются внешними переменными сборки, значения которых наследуются внешними переменными фрагментов для получения их необходимой геометрии.

От размеров обрабатываемой детали зависит количество фрагментов, используемых в сборке. При этом тип кондукторных втулок также можно переключать с помощью внешней переменной.

Кроме того, внешними переменными сборки задаются некоторые ключевые размеры самой сборки и её фрагментов.

В текущем разделе описаны ключевые приёмы работы с 2D сборками, использованные при создании этого примера.
В библиотеке примеров также доступна трехмерная версия сборки того же кондуктора: Примеры 18/3D Сборки/Кондуктор.

Основные темы в этом разделе:
•Приоритет отображения фрагментов
•Управление переменными фрагментов в сборке