Вызов команды:
Пиктограмма |
Лента |
Опорная геометрия > 3D узел > 3D узел по двум проекциям |
|
Клавиатура |
Текстовое меню |
<3KNJ> |
Построения > 3D узел > 3D узел по двум проекциям |
Автоменю команды |
|
<J> |
По двум проекциям |
Данный способ предполагает создание 3D узла на основе его 2D проекций – 2D узлов, лежащих на рабочих плоскостях (поверхностях).

Система предполагает два варианта создания 3D узла:
•На основе одной проекции;
•На основе двух проекций.
После активации данного способа в окне параметров появляются поля задания исходных объектов.
Текущие абсолютные координаты создаваемого 3D узла (в глобальной системе координат) отображаются в разделе Координаты окна параметров.
3D узел на основе одной проекции
Для создания 3D узла необходимо указать 2D узел на рабочей плоскости (поверхности), на 2D проекции либо в окне Элементы модели. Выбранный 2D узел отображается в поле Исходный элемент в разделе По двум проекциям окна параметров. Отмена выбранного узла и повторный выбор осуществляется при помощи кнопки Очистить.
По умолчанию система стремится автоматически определить рабочую плоскость (поверхность), которой принадлежит выбранный 2D узел, и выбрать её в качестве исходных данных для создания 3D узла. Выбранная плоскость (поверхность) отображается в поле Рабочая поверхность в окне параметров, отмена и повторный выбор осуществляется также при помощи кнопки Очистить. Если система не смогла определить плоскость (поверхность), то после выбора 2D узла поле остаётся пустым и автоматически активируется, после чего следует выбрать желаемую плоскость (поверхность) вручную.

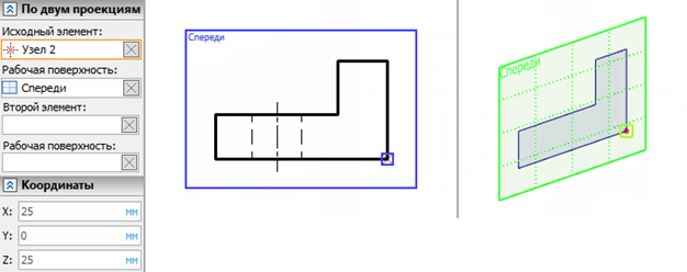
3D узел на основе двух проекций
Для создания 3D узла необходимо сначала выбрать 2D узел первой проекции и соответствующую ему рабочую плоскость (поверхность), как описано выше. После выбора рабочей плоскости поверхности первой проекции, в окне параметров автоматически активируется поле Второй элемент, после чего можно выбрать 2D узел второй проекции. Выбранный 2D узел отображается в поле Второй элемент, отмена и повторный выбор осуществляется при помощи кнопки Очистить.
Так же как и при выборе первого 2D узла, при выборе второго 2D узла система стремится автоматически определить рабочую плоскость (поверхности), которой принадлежит выбранный 2D узел, и выбрать её в качестве исходных данных для создания 3D узла. Выбранная плоскость (поверхность) отображается в поле Вторая рабочая поверхность в окне параметров, отмена и повторный выбор осуществляется также при помощи кнопки Очистить. Если система не смогла определить плоскость (поверхность), то после выбора 2D узла поле остаётся пустым и автоматически активируется, после чего следует выбрать желаемую плоскость (поверхность) вручную.

При данном варианте создания 3D узла возможно возникновение ошибочных ситуаций. 3D узел формируется на пересечении перпендикуляров к рабочим плоскостям, проходящих через выбранные 2D узлы. Если перпендикуляры не пересекаются, в окне диагностики появляется сообщение «Проекции не определяют 3D точку».